| 文号 | 索引号 | 00bfx-00000-2025-00081 | 关键词 | ||
| 主题分类 | 自然资源 | 体裁分类 | 服务对象 |
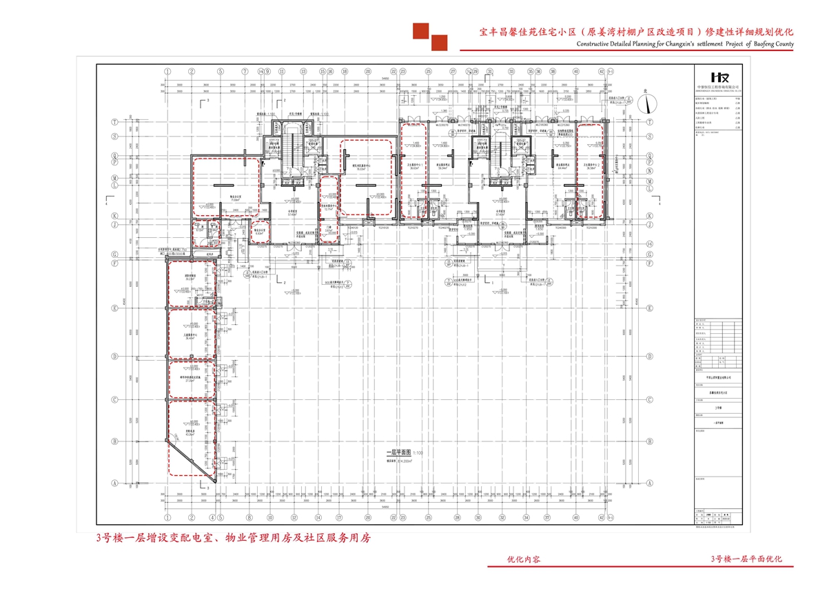
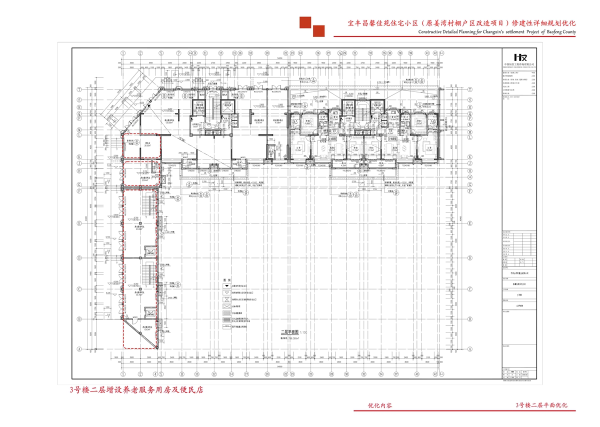
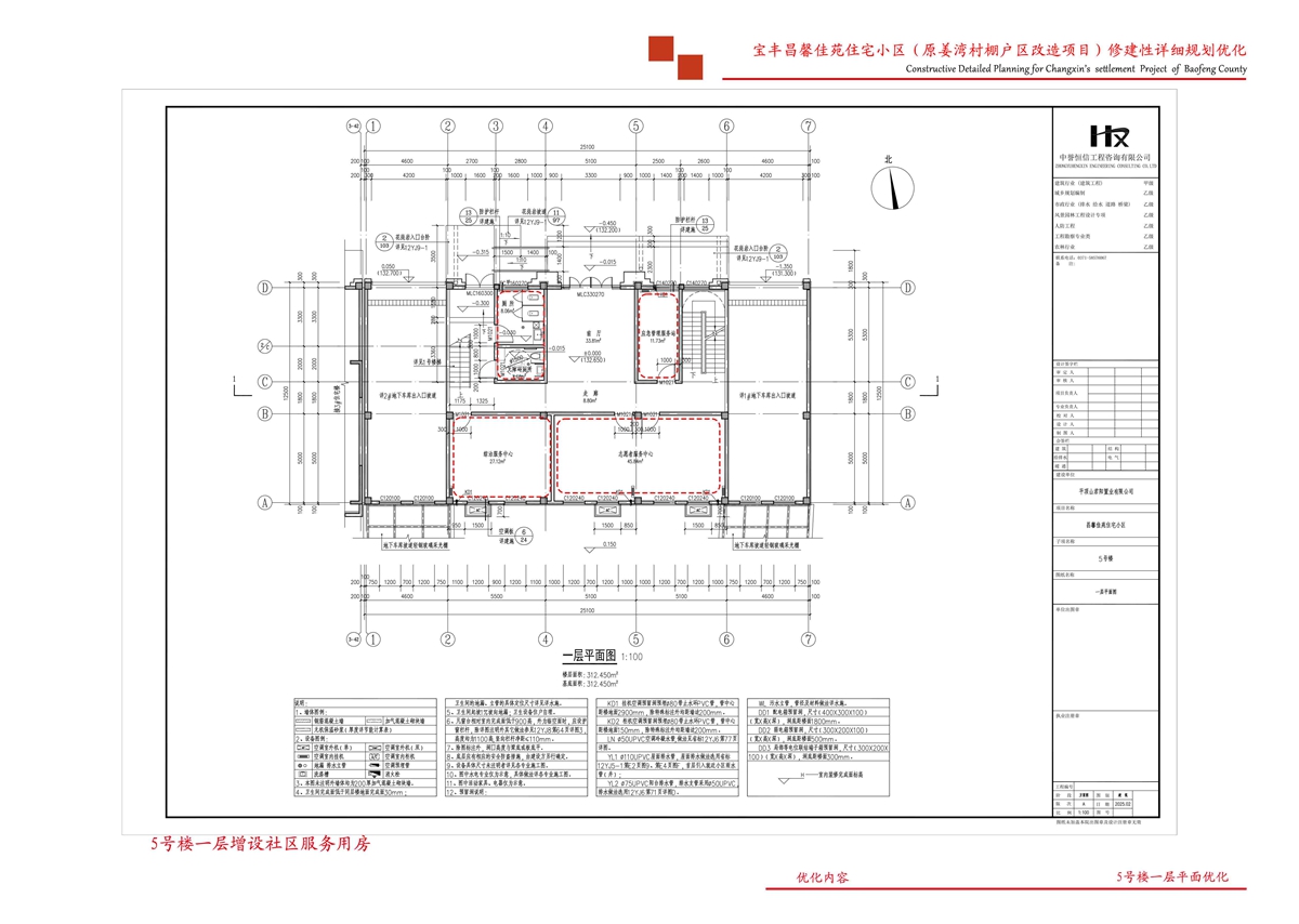
根据《中华人民共和国城乡规划法》及有关法律法规规定,现将经宝丰县国土空间规划委员会二〇二五年第三次会议审议通过,拟批准的宝丰县昌馨佳苑住宅小区(原姜湾村棚户区改造项目)修建性详细规划优化予以公示。
规划设计单位:中誉恒信工程咨询有限公司
建设单位:平顶山君阳置业有限公司
建设地点:宝丰县春风路南段东侧
建设用地面积:8374.9平方米
总建筑面积 :26522.4平方米
本规划方案优化即将进入审批阶段,现面向社会公示,凡对本规划方案优化有异议,或认为该项目的建设对任何单位或个人会造成利益损害的,请自公示之日起7个工作日内向我局提出书面意见,我局将在公示期满后,综合分析有关单位或个人意见,并按照有关技术规范和规定,对规划方案优化修改完善后依法依规办理规划许可手续。
联系电话:0375-6506662 0375-6509998
宝丰县自然资源局
2025年09月30日













宝丰人民政府版权所有 网站标识码:4104210001
联系电话:0375-6522162 邮编:467400